装置管廊的布置

分类:知识百科发布于 2023-07-24 11:00:34阅读799
管廊的形状
      管廊的形状由设备的平面布置决定,一端式和直通式是管廊的基本形状,其他如L型、T型、U型等及形状较复杂的管廊,可视为几个基本形状的组合。
管廊的层数
      目前中型或大型石油化工装置的管廊层数不少于两层,必要时可为三层或局部三层。支管廊及小型装置的管廊可为一层。在管道比较稀疏的区段,例如在靠近装置边界处,宜将两层合并成一层以便利设置平台。
管廊的宽度
1 管廊的宽度由下列因素决定:
     a) 每层管廊的管道数量;
     b) 管廊下方是否布置泵和冷换设备,管廊上方是否布置空冷器;
     c) 布置在管廊上的仪表槽架和电缆槽架所需的宽度。

2 按管道的数量估算管廊的宽度。
      沿管廊全长的不同区段的管道密度并不相同,通常在装置中心区设备密集,管廊上管道密度最大,首尾段靠近装置边界管道数量较少。同时,某些管道适宜布置在上层,某些适宜布置在下层,因此,应依据装置设备平面布置图和工艺管道和仪表流程图规划出管廊上、下层的工艺及公用工程管道的走向,作为估算管廊不同区段所需宽度的依据。可按下式估算管廊的宽度。
      W=f×n×s+A
式中:
      W-管廊的宽度,m;
      f-安全系数,估算准确度较差时f取1.5,估算准确度较精密时f取1.2;
      n-某层管廊DN不大于450的管道根数;
      s-平均管间距,m;
      A-附加宽度,m。
      ①由于装置规模相差悬殊,管廊上管道的直径大小很不相同,在此引入“平均管径”概念。平均管径范围为DN100~DN250,应根据装置的不同情况选取平均管径值,再根据平均管径确定平均管间距s。
      ②由于DN不小于450 的管道所占据的宽度较大,应单独计算,装置内管廊宜预留10%~20%的裕量,该两项的宽度合计为附加宽度 A。预留的管廊空位宜贯通整个管廊。
3 当管廊上布置有仪表和电缆槽架时,应依据相关专业所提供的资料,将其所需的宽度加入到这些槽架所布置的层次的管廊宽度中。

4 当管廊上方布置有空冷器时,管廊的宽度应满足空冷构架尺寸的要求。通常管廊@的宽度宜与构架的长度相一致,例如,国内9m管束空冷的构架长度为8.7m,则管廊宽度也取8.7m,使构架立柱的
位置与管廊立柱位置重合,便于结构设计。
5 当管廊下方布置泵(单排或双排)时,管廊的宽度应考虑泵的长度,操作和检修通道的宽度。泵端应有不小于1.25m的通道,双排泵电机端之间应有不小于2m的通道。当泵进出口管道需向上穿过下层管廊时,在下层管廊上应预留管道穿过的间隙。如果泵的驱动机用电缆为地下敷设时,还应考虑电缆沟所需宽度。此外,还要考虑泵用冷却水管道和排水管道的干管所需宽度;
6 由于整个管廊的管道布置密度并不相同,通常在首尾段管廊的管道数量较少。因此,在必要时可以减小首尾段管廊的宽度或将双层管廊变单层管廊。
7 单跨的管廊宽度一般不超过10m。超过10m时可加副跨或为双跨(等距或不等距)。
管廊的长度
1 管廊长度由设备数量和尺寸决定。
2 一般过程工业装置的设备(换热设备、冷却器、塔、容器、露天压缩机、泵等)每台可按平均占用3m长管廊估计。布置得当,可压缩到2.1-2.4m。通常设备和车间应在管廊两侧布置,不能布置在一侧。
3 扩建需预留的位置应该放在管廊端部。
管廊的柱距和跨距
1 管廊的柱距与管架的跨距由敷设在其上的管道所产生的弯曲应力和挠度决定;通常为6-9m。如中小型装置中,小直径的管道较多时,可在两根支柱之间设置副梁使管道的跨距缩小。
2 管廊的柱距和管架的跨距由敷设在其上的最小管子的允许跨度或用多数管子的允许跨度确定。DN40以下的管道用3-4m。
3 管廊立柱的间距,宜与设备构架支柱的间距取得一致,以便管道通过。如果是混凝土管架,横梁顶宜埋放一根φ20圆钢或钢板,以减少管道与横梁间的摩擦力。
管廊的高度和层高
1 管廊的高度和层间距由下列因素决定:
      a) 管廊下方是否布置泵、冷换设备;
      b) 管廊下方的泵是布置在封闭泵房内、棚内还是露天布置;
      c) 管廊下方作为检修5道或管廊跨越道路时对净高的要求;
      d) 管廊上的大多数管道管径的大小及其与管廊两侧构架和设备的接管高度。
       e)当管廊有桁架时要按桁架底高计算。
2 管廊下方的泵是露天布置时,考虑到泵的操作(泵进出口管道所需立管高度及其吊架梁等)和维修,至少需要3.5m高度。管廊上管道与两侧设备相接时,其高度应比管廊下层管道标高低或高0.6 m~1.0m。所以管廊下层梁顶标高最小为3.5m。实际上,设计中经常采用的下层梁顶标高为4.0m~4.5m。管廊下布置管壳式冷换设备时,由于设备高度增加,需要增加管廊下的净空。
3 管廊下方的泵是布置在泵房或棚内时,管廊下层横梁与泵房顶或棚顶之间的高差应使管道在改变标高后能方便地从管廊侧面与其两侧的设备相连接。这种管道改变走向的标高差为0.6m~1.0m。当管廊下方布置冷换设备时,应根据与冷换设备有关的管道及管廊下层的管道综合考虑下层横梁的最小高度。

4 管廊下方为检修通道或管廊跨越道路时的净高度为:
      a) 管廊下方为检修通道时,不小于3m;
      b) 管廊跨越装置内检修道时,不小于4.5m;
      c) 工厂道路不应小于5.0m;
    d) 管廊跨越铁路时,净高(距地面)不小于5.5m。
5 管廊的层间高差为1.2m~2.0m,横梁与侧梁的高差为0.6m~1.0m,视装置规模及大多数管道的管径而定。管道与管廊两侧设备的连接应避免管道出现液袋。在确定管廊高度时,要考虑到管廊横梁和纵梁的结构断面和型式,务必使梁底和架底的高度,满足上述确定管廊高度的要求。

6 至于装置之间的管廊的高度取决于管架经过地区的具体情况。如临近装置边界或沿工厂边缘或罐区,不会影响厂区交通和扩建的地段,从经济性和检修方便考虑,可用管墩敷设,离地面高300~500mm即可满足要求。
7 垂直相交的管廊高差。若省廊改变方向或两管廊直角相交,其高差取决于管道相互连接的最小尺寸,一般以500~750mm为宜。对于大型装置也可采用1000mm高差。
管廊结构
     有单柱管架和双柱管架之分。宽度规定,单柱管架宽度系类为0.5、1、1.5、2、3米;双柱管架宽度系列为3、4、6、8米。采用单根钢管或者钢筋混凝土立柱加钢梁结构,大型采用钢筋混凝土框架结构。
管廊上的管道布置
     管廊上敷设的管道种类有以下几种:
    工艺管道、公用工程管道、仪表管道和电缆。
1 一般原则
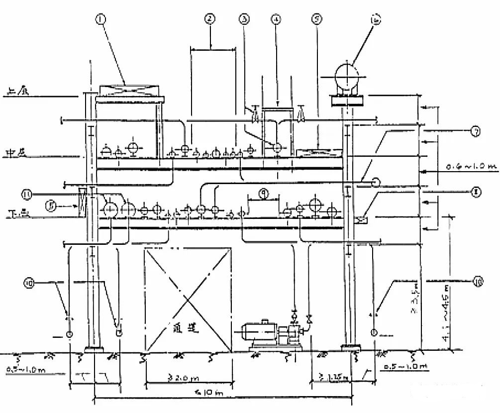
管廊上的管道布置见下图(具有局部三层的管廊)
1-电缆槽架;2-公用系统管道;3-具有众多带阀门支管的公用系统管道,如蒸汽;4-走台;5-宽的仪表槽架;6-泄放总管;7-п形补偿器;8-窄的仪表槽架;9-预留空位;10-各类阀组;11-重的管道
管廊上的管道布置应符合下列原则:
      a) 大直径和重的管道应靠近管廊柱子布置;单柱管架管道均匀布置在管架柱子两侧。小直径、气体管道、公用工程管道宜布置在管廊中间;
      b) 两端均联系管廊左侧设备的管道宜布置在管廊的左侧,反之两端均联系管廊右侧设备的管道宜布置在管廊的右侧;
      c) 需设置п型补偿器的高温管道应布置在靠近柱子处,且п型补偿器宜集中布置,如图:
  d) 低温管道和液化气管道不应靠近热管道布置;
      e) 对于双层管廊,气体管道、介质温度不小于 250 ℃的热管道、公用工程管道、泄压总管、火炬干管及仪表和电缆槽架等宜布置在上层;电缆不允许布置在热管到附近或者输送腐蚀性介质下方,一般敷设在管廊走道的下面或者管廊柱子外侧。一般工艺管道、液化烃管道、腐蚀性介质管道、低温管道宜布置在下层。必须布置在下层的热管道可布置在外侧,但不应与液化烃管道相邻;
      f) 氧气管道与可燃气体、液化烃、可燃液体的管道共架敷设时,氧气管道应布置在一侧,与上述管道之间宜用公用工程管道隔开或保持不小于250 mm的净距。

2 其它要求
1) 管廊上的管道联系着两侧的设备,因此布置管道时应做到步步低或步步高,避免在管廊上形成液袋或气袋。
2) 管廊上的管道需热补偿时,应从管道的起点至终点,对整个管系进行分析,以确定合理的热补偿方案。

3) п形补偿器宜布置在管道两固定点的中央。当不能满足时,п形补偿器与固定点的距离不宜小于两固定点间距的1/3。
4) 装置的泄放总管通常位于管廊上较高的位置。当管廊上方布置有空冷器或三层管廊的上层为通梁结构时,泄放总管可布置在通梁上或立柱外侧的支架上。对于二层式管廊,如标高处理得当,也可布置在上层靠近立柱处。泄放支管通常45°顺流向接入泄放总管。但管径与泄放总管相差很多的小直径支管,可以 90°接入。

5) 从管廊转向其两侧设备区的管道,改变标高有困难时,允许平拐。此时该管道应布置在管廊的最靠边的位置。

6) 沿管廊纵向立柱轴线的内外两侧可布置各种阀组或小型设备如调节阀组、油表阀组、蒸汽伴热管配汽站和凝结水汇集站、过滤器、净化风脱水器、蒸汽分水器等,其与立柱轴线的距离为0.5m~1.0 m。

7) 管廊立柱周围是布置各种小型设施的合适区域,如服务站、取样冷却器、疏水阀组、泵的电机操纵按钮、电缆、现场仪表、直梯、水槽等,应注意协调各专业的要求。

8) 管廊上水平管道变径时应选用偏心大小头,底平,以使管底标高保持不变。

9) 除非不可避免,阀门尽可能不要布置在管廊上。管道在进出装置处通常设有切断阀和盲板。这些阀门和盲板应集中布置并设平台。由于在装置边界附近管廊上的管道数量已大大减少,因此宜将上下层合并成单层以简化平台的设计。装置边界处的单层阀门平台和双层管廊的阀门平台见下图。当平台的长度不小于8m时,应在平台的两端设直梯。
注:双层平台,也可以将平台布置在管道的下方。

10) 当装置外工厂系统管道采用管墩敷设时,装置边界处的切断阀和盲板可采用下图的安装方法。
11) 管廊的顶层必要时可设一至两个走台供操作阀门及巡视检修用。走台的外侧也可适当布置一些小的阀组和现场仪表等。当管廊顶层布置有空冷器时,走台的设置应与空冷器平台结合考虑。

12) 敷设在管廊上的管道有径向位移时,应加大管间距。

13) 管廊上两管道之间有连线时,连线应有足够的柔性。

14) 管廊下每隔三至四个管架,在靠近柱子处设 DN20 的公用软管站(服务站)。软管站由工业用水,压缩空气和蒸汽软管接头组成,必要时可加设氮气软管接头。

15) 用大管支小管时要考虑大管与小管之间的相对位移。

16) 孔板宜布置在易于接近的位置。
如需转载,请注明文章出处和来源网址:http://www.cqqba.com/News_d78710c8.aspx
相关文章
事故应急池容量计算方法

事故应急池容量计算方法

二氧化碳保护焊安全规范程序文件

二氧化碳保护焊安全规范程序文件

截止阀和球阀,闸阀的区别

截止阀和球阀,闸阀的区别

恭喜首台套撬装甲醇生产装置生产加工完成

恭喜首台套撬装甲醇生产装置生产加工完成

联系人:王先生
咨询电话:13330366960 / 15023522919
联系地址:重庆市南岸区数字产业园(重庆市南岸区花园路街道丹龙路17号)3号楼1701